Wunderbär

Erweiterung Schulanlage Laubegg Winterthur

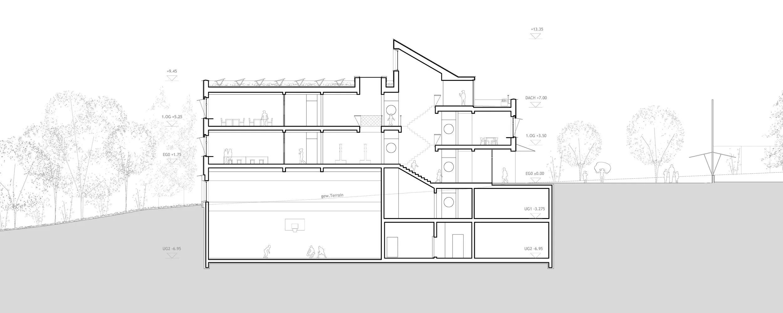
Durch die sorgfältige Platzierung des Gebäudes im bestehenden Terrain und das Anlegen eines Split-Levels kann der Aushub reduziert werden und zugleich erhält die Turnhalle eine natürliche Belichtung. Die Geschosse werden in einer Mischbauweise aus Holz und Lehm erstellt.

  • Aussen prägen Holz und Lehm das Erscheinungsbild des Erweiterungsneubau. Auf einem mineralischen Sockel stapeln sich die hölzernen Schulgeschosse und zeichnen die innere Struktur auch an der Fassade ab (Splitlevel, Raumorganisation). Prägnante Vordächer sowie grosszügig dimensionierte Fensterbänke bieten auf der einen Seite einen fixen sommerlichen Wärmeschutz, bilden aber zudem auch den konstruktiven Wetterschutz für die hinterlüftete Holz- respektive Lehmfassade. Auch hier sind die einzelnen Bauteile sichtbar untereinander verbunden, sodass unterschiedliche Abnutzungen respektive Lebensdauern berücksichtigt werden können.

    Das Zentrum des Gebäudes bietet neben der Erschliessung verschiedene Aufenthaltsmöglichkeiten, Nischen und Arbeitsplätze. Diese Zone lässt sich einfach und frei möblieren und bietet reichlich natürliches Licht für eine flexible Nutzung: Sie lädt zur Aneignung durch die Kinder ein. Um das Zentrum herum sind die diversen Räumlichkeiten angeordnet. Die Haupträume werden über eine Vorzone erschlossen, welche als räumlicher Filter und Verteiler dient.

    Holz als nachwachsender Rohstoff, sowie der in grossen Mengen verfügbarer Lehm haben gegenüber anderen Materialien zum einen um ein Vielfaches tieferen Energiegehalt bei der Herstellung, zum anderen können diese Bauteile einfach unterhalten und wenn nötig mit sehr geringem Aufwand repariert werden. Zudem sind sie nach dem Erreichen der Lebensdauer gut recyclier- oder wiederverwendbar.

  • Offener Wettbewerb 2024, 3. Runde
    Zusammenarbeit mit Taka Ishikawa Architects, WAM Ingenieure

Zurück
Zurück

Zabardast

Weiter
Weiter

Pays Imaginaire